- 預付費功能:購水后可自行刷卡充值。
- 磁保護功能:受到強磁干擾時,自動關閉閥門。
- 階梯收費功能:多套價格體系,管理部門自行設定。
- 高清液晶顯示功能:用戶可以實時查看累計水量、購水量、可用余量、閥門狀態等信息。
- 閥門防銹設計:閥門每月自動開關一次,防止閥門長時間不用導致銹死、失靈。
- 防潮設計:采取防潮技術處理,在潮濕的環境下能正常工作。
|
項目 |
性能參數 |
|
公稱口徑 |
DN15、DN20、DN25 |
|
準確度等級 |
2級 |
|
最大允許工作壓力 |
≤1.0MPa |
|
電源電壓 |
DC 3.6V(1節內置鋰電池) |
|
環境溫度 |
+5~+55oC。 |
|
水介質溫度 |
0.1~30oC (冷水);30~90oC (熱水)。 |
|
相對濕度 |
在40oC時為0%~100%。 |
|
示值誤差限 |
A、低區的最大允許誤差:±5%; |
|
B、高區的最大允許誤差:水溫≦30oC時為±2%;水溫>30oC時為±3% |

|
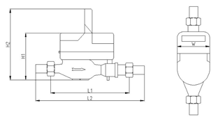
口徑 |
長L1 |
寬W |
高H1 |
高H2 |
接管長度 |
密封墊厚度 |
|
DN15 |
165 |
85 |
115 |
185 |
45 |
2.8 |
|
DN20 |
195 |
85 |
120 |
190 |
50 |
2.8 |
|
DN25 |
225 |
85 |
120 |
190 |
58 |
2.8 |

水平表安裝示意圖

立式表安裝示意圖